Este site utiliza cookies para permitir a mudança de língua e o armazenamento dos seus imóveis favoritos. Ao utilizar este site, concorda que o mesmo utilize cookies.

Apartamento T2 Novo na Praia da Consolação | Piscina no Rooftop | Costa de Prata

390.000€



Referência

CPT-216604

Natureza

Venda

Tipo de Imóvel

Apartamento

Tipologia

T2

Estado

Em Construção

Certificado energético

A

Ano

2025


Distrito

Leiria

Concelho

Peniche

Freguesia

Atouguia da Baleia

Código Postal

2525-443


Área Útil

84.84 m2

Área Bruta

112.3 m2

Área de Terreno

0 m2

Partilhar



Contactar Imobiliária

*Preenchimento obrigatório
Ao clicar em 'Enviar', declara que aceita a nossa Política de Privacidade.
Apartamento T2 Novo na Praia da Consolação | Piscina no Rooftop | Costa de Prata

Apartamento T2, inserido no exclusivo empreendimento Consolação Beach, localizado a apenas 200 metros da Praia da Consolação, na prestigiada Costa de Prata. Um projeto que alia sofisticação, conforto e localização privilegiada, ideal para habitação própria, casa de férias ou investimento seguro.

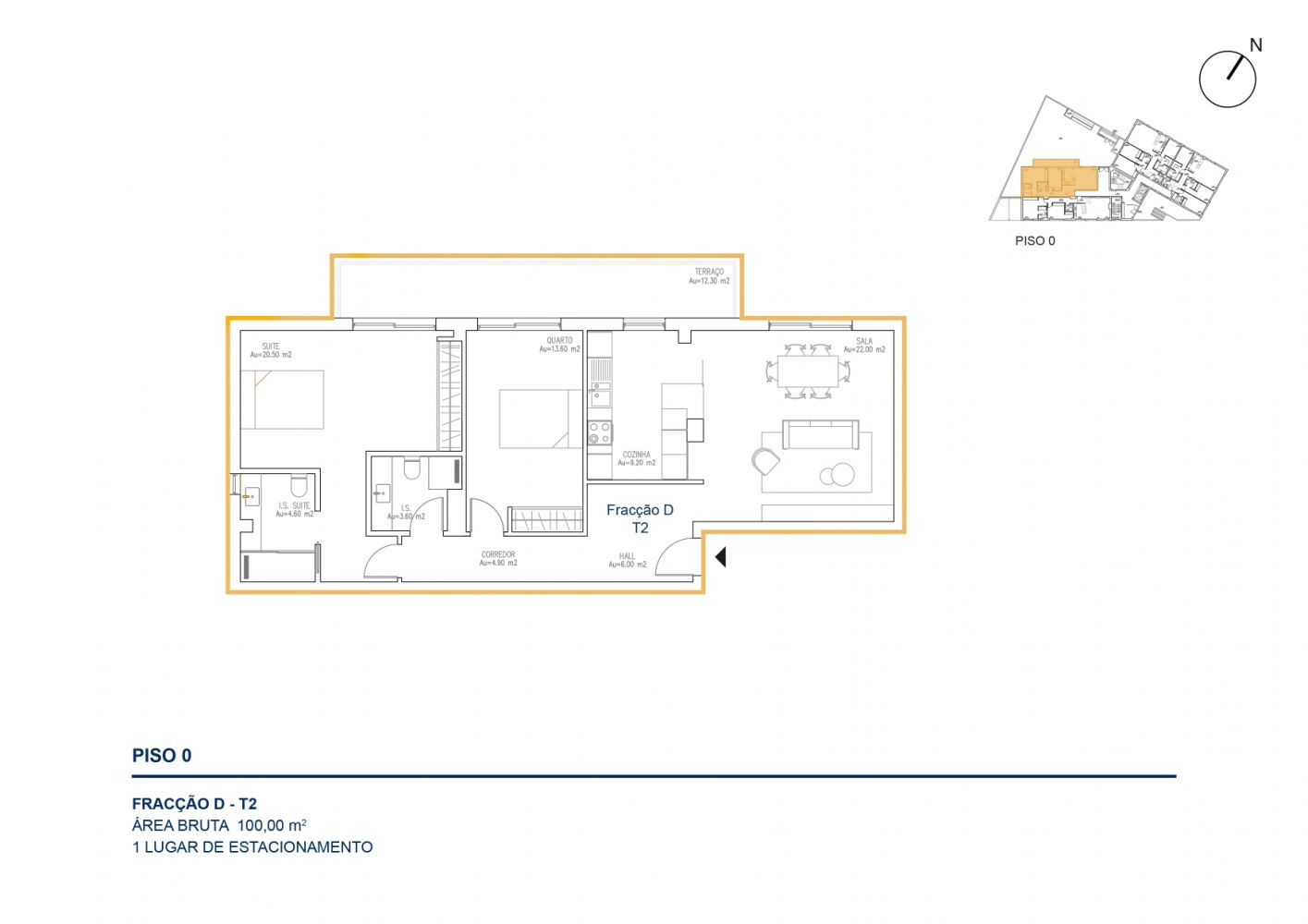
Situado no rés-do-chão, este apartamento apresenta uma ampla sala com cozinha em open space, totalmente equipada com forno, placa de indução, exaustor, micro-ondas, frigorífico combinado, máquina de lavar loiça e máquina de lavar e secar roupa. A climatização é assegurada por ar condicionado e bomba de calor, garantindo eficiência energética e conforto durante todo o ano.

A área privada é composta por dois quartos de generosas dimensões, ambos com roupeiros embutidos, sendo um deles em suíte, além de uma casa de banho completa.

Este apartamento distingue-se ainda por um terraço privativo, com acesso direto pela cozinha e pelos dois quartos, proporcionando uma ligação harmoniosa entre o interior e o exterior — ideal para momentos de lazer, refeições ao ar livre ou descanso num ambiente resguardado e luminoso.

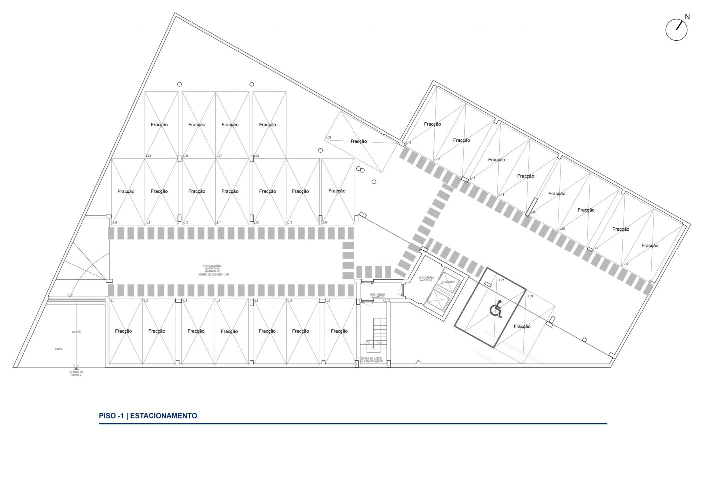
Inclui 1 lugar de estacionamento no piso -1, assegurando comodidade e segurança.

No rooftop, os residentes poderão usufruir de uma piscina com vista mar, instalação sanitária e chuveiro de apoio, num espaço exclusivo onde é possível contemplar o Oceano Atlântico, as Berlengas e sunsets verdadeiramente inesquecíveis.

O edifício dispõe de dois elevadores e duas entradas independentes, cada uma com o seu átrio exterior. A entrada principal destaca-se pela elegância e funcionalidade, enquanto a entrada posterior oferece um átrio mais amplo e ajardinado, criando um ambiente acolhedor, seguro e ideal para famílias.

A localização é um dos grandes atrativos, junto à Praia da Consolação, a poucos minutos dos Supertubos, Peniche e Baleal, referências internacionais de surf, lazer, gastronomia e cultura. Lisboa encontra-se a apenas 1 hora, com rápido acesso à autoestrada.

Com acabamentos de elevada qualidade e entrega prevista para o 1.º semestre de 2027, este Apartamento T2 no Consolação Beach representa uma oportunidade única de viver ou investir num empreendimento moderno e diferenciado, numa das zonas com maior crescimento e valorização da Costa de Prata de Portugal.

Não perca esta oportunidade. Entre em contacto para mais informações. Estamos ao seu dispor.
Geral
GeraisRés do chão:Sim
GeraisNº de Casas de Banho:2
GeraisNº de Terraços:1
GeraisSuite:Sim
GeraisRecomendado para crianças:Sim
ClimatizaçãoAr condicionado:Sim
ClimatizaçãoBomba de calor:Sim
CaixilhariaVidro Duplo:Sim
CaixilhariaEstores:Sim
Exposição SolarNorte:Sim
Exposição SolarPoente:Sim
Ar CondicionadoCompleto:Sim
GaragemIndividual:Sim
GaragemLugar Interior:Sim
CozinhaMóveis lacado:Sim
CozinhaPlaca:Sim
CozinhaForno:Sim
CozinhaExaustor:Sim
CozinhaMicro-ondas:Sim
CozinhaFrigorífico:Sim
CozinhaMáquina de lavar loiça:Sim
CozinhaMáquina de lavar roupa:Sim
PavimentoPiso vinílico:Sim
Edificio
ElevadorNº de Elevadores:2
ElevadorVintage:Sim
Tipo de EmpreendimentoHabitação:Sim
EquipamentoPiscina exterior:Sim
EquipamentoVideo-Porteiro:Sim
GeraisNº de Lugares de Estacionamento:1
GeraisNº de Piscinas:1
GeraisEstacionamento incluido:Sim
GaragemPortão automático:Sim
Domótica
GeraisEstores elétricos:Sim
Zona
GeraisAuto-Estrada:Sim
GeraisPerto de mar:Sim
ProximidadeJardins:Sim
ProximidadePadarias:Sim
ProximidadePraias:Sim
ProximidadeServiços públicos:Sim
AcessosAlcatrão:Sim
CentralidadeJunto à cidade:Sim
Hall:6 m2
Corredor:4.9 m2
I.S.:3.6 m2
Suite:20.5 m2
I.S. Suite:4.6 m2
Quarto:13.6 m2
Cozinha:9.2 m2
Sala:22 m2
Terraço:12.3 m2
Estacionamento:25 m2

Imóveis
Semelhantes

Apartamento
Venda
NOVA CONSTRUÇÃO

350.000€

Apartamento T2 Moderno e Luminoso a 200m da P...

350.000€

Leiria / Peniche / Atouguia da Baleia


Ref: CPT-216601

Ref: CPT-216601

74.8 m2

2

1

Apartamento
Venda
NOVA CONSTRUÇÃO

320.000€

Apartamento T2 Novo – 5 minutos da Praia da C...

320.000€

Leiria / Peniche / Atouguia da Baleia


Ref: CPT-216596

Ref: CPT-216596

96.08 m2

2

2

Apartamento
Venda
NOVA CONSTRUÇÃO

395.000€

Apartamento T3 Moderno e Luminoso a 200m da P...

395.000€

Leiria / Peniche / Atouguia da Baleia


Ref: CPT-216602

Ref: CPT-216602

98.5 m2

3

2

Sim