Este site utiliza cookies para permitir a mudança de língua e o armazenamento dos seus imóveis favoritos. Ao utilizar este site, concorda que o mesmo utilize cookies.

Apartamento T3 Moderno e Luminoso a 200m da Praia da Consolação

395.000€



Referência

CPT-216602

Natureza

Venda

Tipo de Imóvel

Apartamento

Tipologia

T3

Estado

Em Construção

Certificado energético

A+

Ano

2025


Distrito

Leiria

Concelho

Peniche

Freguesia

Atouguia da Baleia

Código Postal

2525-443


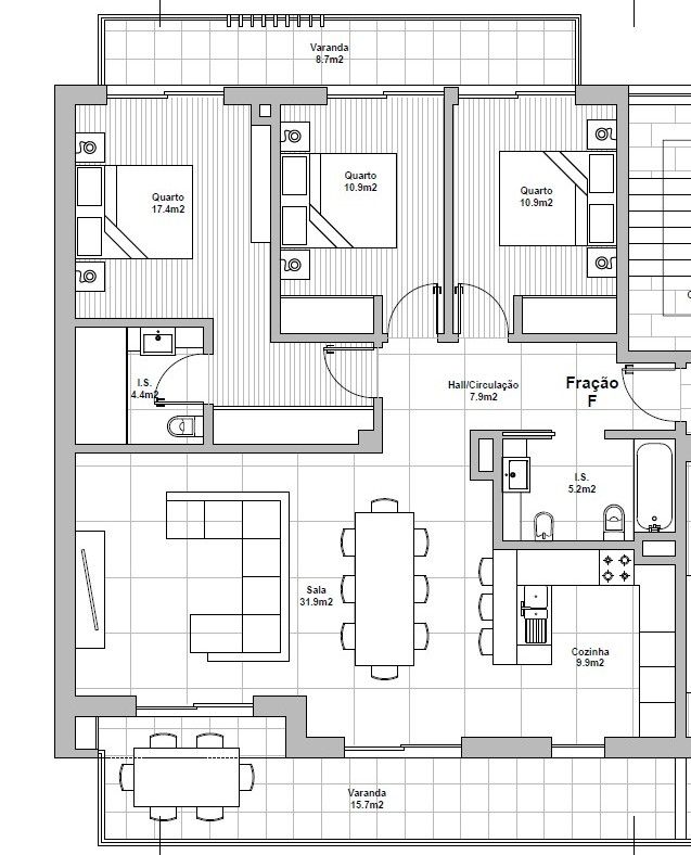
Área Útil

98.5 m2

Área Bruta

143.2 m2

Área de Terreno

0 m2

Partilhar



Contactar Imobiliária

*Preenchimento obrigatório
Ao clicar em 'Enviar', declara que aceita a nossa Política de Privacidade.
Apartamento T3 moderno e luminoso, localizado a menos de 200 metros da Praia da Consolação. Com uma excelente orientação solar a sul e noroeste, o imóvel oferece luz natural abundante ao longo de todo o dia, criando um ambiente acolhedor e confortável. Situado no segundo piso, que corresponde ao último piso do edifício, beneficia de maior privacidade e tranquilidade.

O apartamento integra um edifício de três pisos atualmente em construção, concebido com materiais e acabamentos de elevada qualidade. A conclusão da obra está prevista para o verão de 2026. O projeto inclui garagem com portão automático, elevador e um rooftop com piscina exclusiva, ideal para momentos de lazer e descontração.

A nível interior, será possível personalizar diversos elementos — como revestimentos, cozinha, louças sanitárias e armários — permitindo adaptar o imóvel ao seu gosto e necessidades.

A localização é perfeita para quem aprecia um estilo de vida ativo e de proximidade com a natureza. Nas imediações, encontrará excelentes condições para surf, desportos aquáticos, passeios a cavalo, karting e outras atividades ao ar livre. O Dino Parque fica a apenas 10 minutos, e vários campos de golfe situam-se num raio de 5 a 30 minutos. O Aeroporto de Lisboa encontra-se a aproximadamente 45 minutos, com acessos rápidos pela IP6/A8.

Uma excelente oportunidade para quem procura um apartamento contemporâneo, luminoso e numa zona privilegiada — seja para habitação própria, seja para investimento em arrendamento.
Geral
GeraisÚltimo piso:Sim
GeraisNº de Divisões :4
GeraisNº de Casas de Banho:2
GeraisArmário de roupa / closet:Sim
GeraisSuite:Sim
GeraisAdaptado a mobilidade reduzida:Sim
GeraisRecomendado para crianças:Sim
CaixilhariaAluminio:Sim
CaixilhariaVidro Duplo:Sim
CaixilhariaEstores:Sim
Exposição SolarNorte:Sim
Exposição SolarPoente:Sim
Exposição SolarSul:Sim
Ar CondicionadoPré-instalado:Sim
GaragemLugar Interior:Sim
CozinhaMóveis lacado:Sim
CozinhaPlaca:Sim
CozinhaForno:Sim
CozinhaExaustor:Sim
CozinhaFrigorífico:Sim
PavimentoPiso vinílico:Sim
Edificio
GeraisNº de Varandas:2
GeraisNº de Lugares de Estacionamento:1
GeraisNº de Piscinas:1
GeraisAcesso mobilidade reduzida:Sim
GeraisEstacionamento incluido:Sim
ElevadorNº de Elevadores:1
EquipamentoPiscina exterior:Sim
EquipamentoVideo-Porteiro:Sim
GaragemPortão automático:Sim
Domótica
GeraisEstores elétricos:Sim
Aquecimento CentralPré-instalação:Sim
Zona
GeraisAuto-Estrada:Sim
GeraisPerto de mar:Sim
GeraisTransportes públicos:Sim
CentralidadePeriferia da cidade:Sim
ProximidadePadarias:Sim
ProximidadePraias:Sim
ProximidadeSupermercados:Sim

Este imóvel não tem áreas definidas.

Imóveis
Semelhantes

Apartamento
Venda
NOVA CONSTRUÇÃO

480.000€

Apartamento T3 Novo - Casais de Mestre Mendo ...

480.000€

Leiria / Peniche / Atouguia da Baleia


Ref: CPT-216590

Ref: CPT-216590

130 m2

3

2

Sim

Apartamento
Venda
NOVA CONSTRUÇÃO

385.000€

Apartamento T3 Moderno e Luminoso a 200m da P...

385.000€

Leiria / Peniche / Atouguia da Baleia


Ref: CPT-216600

Ref: CPT-216600

98.5 m2

3

2

Sim

Apartamento
Venda
VENDIDO

Preço sob consulta

Apartamento T2 Novo com Vista Mar – Casais de...

Preço sob consulta

Leiria / Peniche / Atouguia da Baleia


Ref: CPT-216542

Ref: CPT-216542

72 m2

2

1

Sim