Este site utiliza cookies para permitir a mudança de língua e o armazenamento dos seus imóveis favoritos. Ao utilizar este site, concorda que o mesmo utilize cookies.

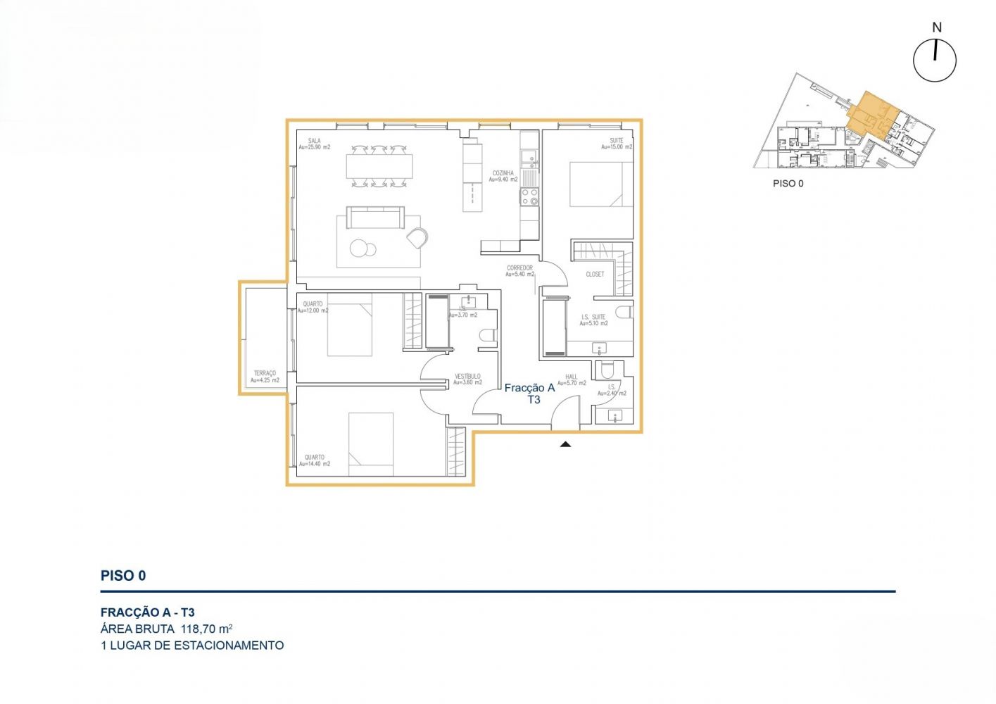
T3 Novo a 200m do Mar | Rooftop com Piscina e Vista Mar | Praia da Consolação

460.000€




Referência

CPT-216628

Natureza

Venda

Tipo de Imóvel

Apartamento

Subtipo de Imóvel

Triplex

Tipologia

T3

Estado

Em Construção

Certificado energético

A

Ano

2026


Distrito

Leiria

Concelho

Peniche

Freguesia

Atouguia da Baleia

Código Postal

2525-443


Área Útil

102.6 m2

Área Bruta

118.7 m2

Área de Terreno

0 m2



Contactar Imobiliária

*Preenchimento obrigatório
Ao clicar em 'Enviar', declara que aceita a nossa Política de Privacidade.
Apartamento T3 Novo a 200 m da Praia da Consolação | Piscina no Rooftop | Garagem

Apartamento T3 novo, inserido no exclusivo e moderno empreendimento Consolação Beach, localizado a apenas 200 metros da Praia da Consolação, na Costa de Prata. Um projeto diferenciado que combina design contemporâneo, acabamentos de elevada qualidade e localização privilegiada.

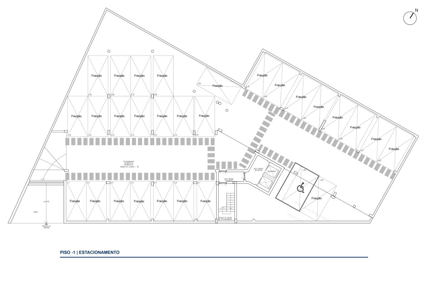
Situado no piso 0, o apartamento dispõe de ampla sala em open space com cozinha totalmente equipada, três quartos, incluindo suíte com closet, um terraço, e excelente luminosidade. Inclui um lugar de estacionamento em garagem coletiva.

O empreendimento oferece piscina no rooftop com vista mar, zona de lazer exclusiva, elevadores e áreas comuns modernas, proporcionando conforto, sofisticação e qualidade de vida.

Localização premium, próxima de Peniche, Baleal, Supertubos e a 1 hora de Lisboa, ideal para habitação permanente, casa de férias ou investimento seguro.

Entrega prevista: 1.º semestre de 2027.

Não perca esta oportunidade. Entre em contacto para mais informações. Estamos ao seu dispor.
Geral
GeraisRés do chão:Sim
GeraisNº de Casas de Banho:3
GeraisArmário de roupa / closet:Sim
GeraisSuite:Sim
CaixilhariaPVC:Sim
CaixilhariaVidro Duplo:Sim
VistasCidade:Sim
Exposição SolarNascente:Sim
Exposição SolarNorte:Sim
Luz NaturalIluminado:Sim
GaragemLugar Interior:Sim
CozinhaMóveis lacado:Sim
PavimentoPiso vinílico:Sim
Edificio
ElevadorNº de Elevadores:2
ElevadorVintage:Sim
EquipamentoPiscina exterior:Sim
GeraisNº de Piscinas:1
GaragemPortão automático:Sim
Domótica
GeraisEstores elétricos:Sim
Zona
GeraisAuto-Estrada:Sim
GeraisPerto de mar:Sim
GeraisTransportes públicos:Sim
ProximidadeEscolas:Sim
ProximidadeFarmácias:Sim
ProximidadeJardins:Sim
ProximidadePadarias:Sim
ProximidadePraias:Sim
ProximidadeServiços públicos:Sim
AcessosAlcatrão:Sim

Este imóvel não tem áreas definidas.

Imóveis
Semelhantes

Apartamento
Venda
NOVA CONSTRUÇÃO

350.000€

Apartamento T2 Moderno e Luminoso a 200m da P...

350.000€

Leiria / Peniche / Atouguia da Baleia


Ref: CPT-216601

Ref: CPT-216601

74.8 m2

2

1

Apartamento
Venda
VENDIDO

Preço sob consulta

Apartamento T2 Remodelado em Peniche - Oportu...

Preço sob consulta

Leiria / Peniche / Peniche


Ref: CPT-216530

Ref: CPT-216530

97.2 m2

2

2

Apartamento
Venda
NOVA CONSTRUÇÃO

390.000€

Apartamento T2 Novo na Praia da Consolação

390.000€

Leiria / Peniche / Atouguia da Baleia


Ref: CPT-216604

Ref: CPT-216604

84.84 m2

2

2

Sim