Este site utiliza cookies para permitir a mudança de língua e o armazenamento dos seus imóveis favoritos. Ao utilizar este site, concorda que o mesmo utilize cookies.

Apartamento T3 Novo a 200m do Mar | Rooftop com Piscina e Vista Mar | Praia da Consolação

565.000€




Referência

CPT-216639

Natureza

Venda

Tipo de Imóvel

Apartamento

Tipologia

T3

Estado

Em Construção

Certificado energético

A

Ano

2025


Distrito

Leiria

Concelho

Peniche

Freguesia

Atouguia da Baleia

Código Postal

2525-443


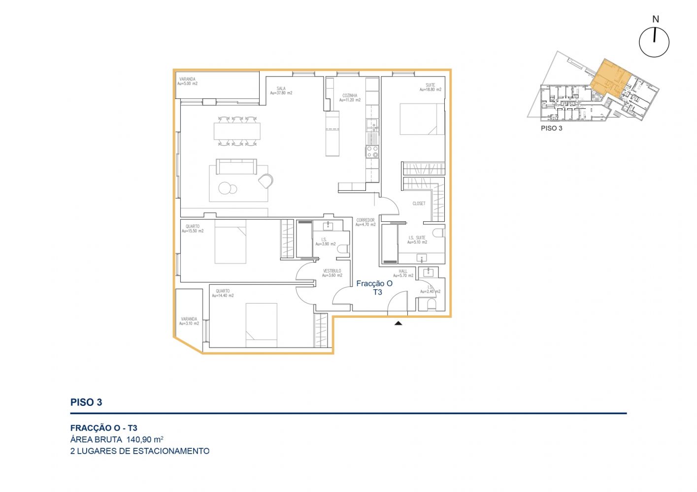
Área Útil

123 m2

Área Bruta

141 m2

Área de Terreno

0 m2



Contactar Imobiliária

*Preenchimento obrigatório
Ao clicar em 'Enviar', declara que aceita a nossa Política de Privacidade.
Apartamento T3 inserido no empreendimento Consolação Beach, localizado a apenas 200 metros da Praia da Consolação, onde se destacam o conforto, a qualidade e uma localização privilegiada na Costa de Prata.

Situado ao nível do terceiro piso, este imóvel dispõe de uma espaçosa sala em open space com cozinha totalmente equipada (forno, placa de indução, exaustor, micro-ondas, frigorífico combinado, máquina de lavar loiça e máquina de lavar e secar roupa). A sala tem acesso direto a uma varanda, perfeita para desfrutar de momentos de tranquilidade. Conta ainda com sistema de climatização através de ar condicionado e bomba de calor, garantindo eficiência energética e conforto durante todo o ano.

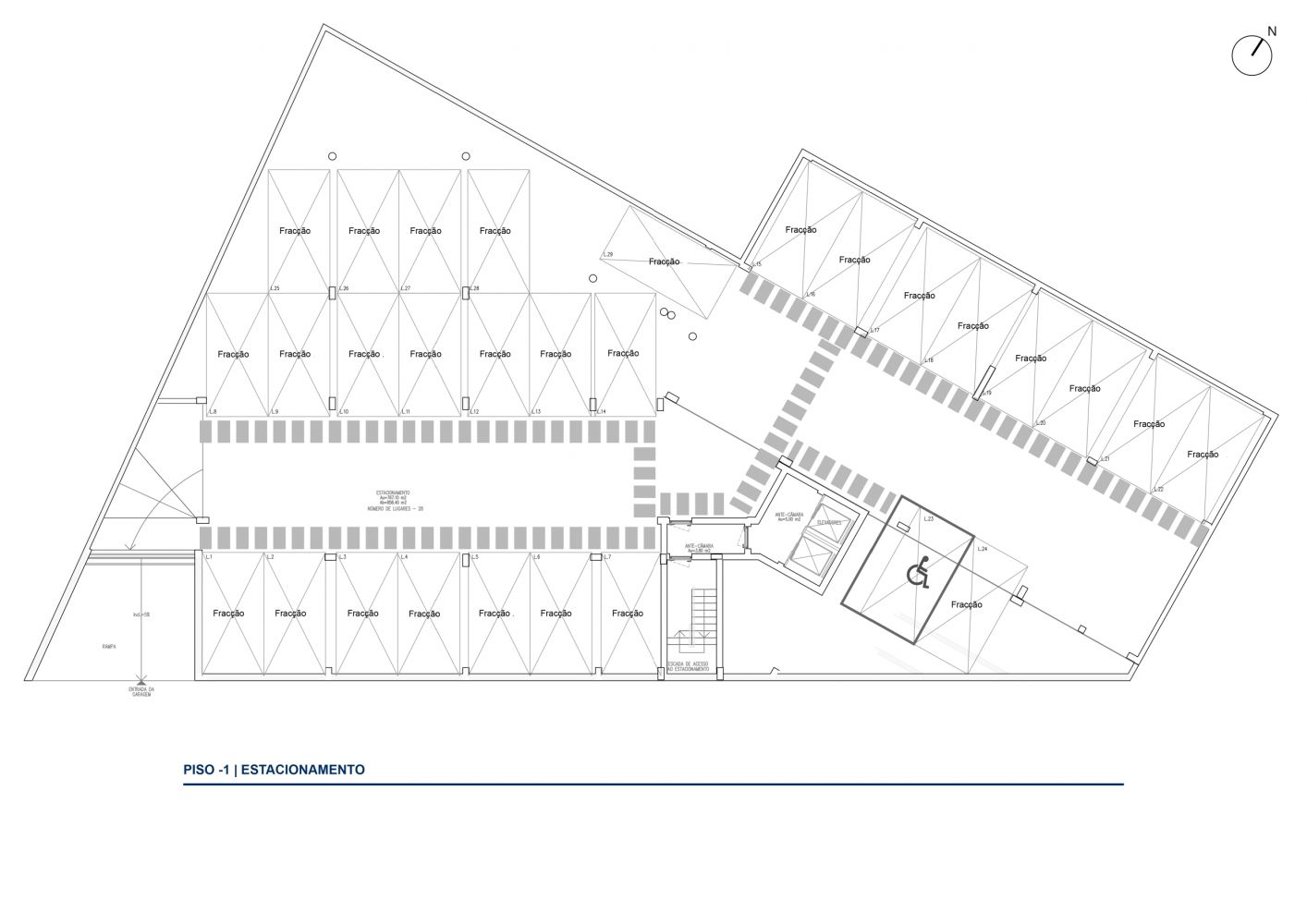
Os três quartos foram concebidos a pensar no conforto e na funcionalidade. A suíte principal dispõe de closet e casa de banho privativa, garantindo maior privacidade. Os dois quartos adicionais, ambos com roupeiros embutidos, são apoiados por uma casa de banho completa. O apartamento conta ainda com uma casa de banho de serviço junto à zona social, proporcionando maior comodidade no dia a dia. Inclui dois lugares de estacionamento no piso -1, proporcionando comodidade e segurança.

O empreendimento oferece piscina no rooftop com vista mar, zona de lazer exclusiva, elevadores e áreas comuns modernas, proporcionando conforto e qualidade de vida.

Localização premium, próxima de Peniche, Baleal, Supertubos e a 1 hora de Lisboa, ideal para habitação permanente, casa de férias ou investimento seguro.

Entrega prevista: 1º semestre de 2027.
Não perca esta oportunidade. Entre em contacto para mais informações. Estamos ao seu dispor.
Geral
GeraisÚltimo piso:Sim
GeraisNº de Casas de Banho:3
GeraisArmário de roupa / closet:Sim
GeraisSuite:Sim
GeraisAdaptado a mobilidade reduzida:Sim
GeraisRecomendado para crianças:Sim
ClimatizaçãoAr condicionado:Sim
ClimatizaçãoBomba de calor:Sim
CaixilhariaPVC:Sim
CaixilhariaVidro Duplo:Sim
CaixilhariaEstores:Sim
VistasMar:Sim
Exposição SolarNascente:Sim
Exposição SolarNorte:Sim
GaragemFechada Interior:Sim
GaragemLugar Interior:Sim
PavimentoPiso vinílico:Sim
Edificio
GeraisNº de Varandas:2
GeraisNº de Lugares de Estacionamento:2
GeraisNº de Garagens:2
GeraisNº de Piscinas:1
GeraisEstacionamento incluido:Sim
EquipamentoVideo-Porteiro:Sim
Domótica
GeraisEstores elétricos:Sim
Zona
GeraisAuto-Estrada:Sim
GeraisPerto de mar:Sim
ProximidadeJardins:Sim
ProximidadePadarias:Sim
ProximidadePraias:Sim
ProximidadeServiços públicos:Sim
ProximidadeSupermercados:Sim
AcessosAlcatrão:Sim
CentralidadeJunto à cidade:Sim

Este imóvel não tem áreas definidas.

Imóveis
Semelhantes

Apartamento
Venda

318.500€

Acolhedor Apartamento T3 no Centro de Ferrel,...

318.500€

Leiria / Peniche / Ferrel


Ref: CPT-216616

Ref: CPT-216616

105 m2

3

2

Apartamento
Venda
NOVA CONSTRUÇÃO

675.000€

Apartamento T4 de Luxo a 200 m da Praia – Con...

675.000€

Leiria / Peniche / Atouguia da Baleia


Ref: CPT-216609

Ref: CPT-216609

118.7 m2

4

3

Sim

Apartamento
Venda
NOVA CONSTRUÇÃO

395.000€

Apartamento T3 Novo com Vista Mar e Piscina n...

395.000€

Leiria / Peniche / Atouguia da Baleia


Ref: CPT-216602

Ref: CPT-216602

135 m2

3

2

Sim